
Architecte d’intérieur & architecte à Rebecq
Création GINER accompagne les particuliers de Rebecq pour transformer, rénover et sublimer leur habitation.
Nous concevons vos intérieurs (espaces, volumes, lumière, matériaux) et, grâce à nos partenaires architectes, nous pouvons également assurer l’architecture globale : dépôt de permis, extensions, transformations lourdes et suivi complet du chantier.
De l’esquisse à la réception, vous bénéficiez d’un interlocuteur unique, de finitions soignées et d’un planning maîtrisé.
Création moderne, minimaliste ou classique : nous adaptons les techniques, les volumes et les espaces selon vos besoins. Tout cela en tenant compte de vos exigences et des normes, tout en intégrant les dernières innovations techniques. Une approche personnalisée, entièrement adaptée à vos attentes.
Nos services phares
-
Rénovation intérieure complète (redistribution des espaces, ouvertures de murs porteurs avec ingénierie).
-
Cuisines & Salles de bain haut de gamme : pierre naturelle, travertin, niches LED, robinetterie design.
-
Menuiserie sur-mesure : dressings, bibliothèques, portes, panneaux muraux, meubles intégrés.
-
Architecture globale : études préalables, permis d’urbanisme, coordination technique et suivi A → Z.
Questions fréquentes
-
Question : “Intervenez-vous aussi pour les permis et l’architecture globale ?”
Réponse : “Oui, grâce à nos partenaires architectes, nous prenons en charge la conception, le dossier de permis et le suivi complet du chantier.”
-
Question : “Puis-je garder certains artisans déjà choisis ?”
Réponse : “Oui, nous pouvons collaborer avec vos équipes existantes ou travailler avec notre réseau d’artisans de confiance.”
Architecture d’intérieur
Nous concevons des espaces uniques, adaptés à votre style de vie. Esthétique, confort et fonctionnalité, pour valoriser votre habitation à Rebecq.
Création moderne, minimaliste ou classique : nous adaptons les techniques, les volumes et les espaces selon vos besoins. Tout cela en tenant compte de vos exigences et des normes, tout en intégrant les dernières innovations techniques. Une approche personnalisée, entièrement adaptée à vos attentes.
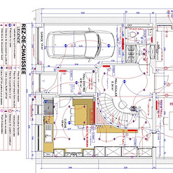
Conception 2D & 3D
Plans 2D détaillés et visualisations 3D pour valider les choix esthétiques et techniques avant travaux.



Rénovation & Aménagement
Du rafraîchissement à la transformation complète : moderniser, optimiser les volumes et mettre en valeur votre bien.



Architecture & Permis : de la vision aux autorisations
Création GINER transforme vos idées en projets concrets : étude, plans et coordination avec nos partenaires architectes pour obtenir les permis nécessaires.
Nous simplifions les démarches et assurons un suivi complet, de la conception à l’autorisation officielle.
Architecture & Permis

Suivi & Coordination de chantier
Coordination des travaux (plomberie, électricité, peinture, maçonnerie, décoration, extensions) et contrôle des réalisations pour un rendu durable et esthétique.



Décoration & finitions
Couleurs, matériaux, mobilier, éclairages : la touche finale qui crée une ambiance harmonieuse et personnalisée.



Aménagement de jardin
Conception de terrasses, plantations et zones de détente pour une continuité harmonieuse intérieur/extérieur.



Projets en Belgique & en Espagne
Basés à Waterloo, nous intervenons dans tout le Brabant wallon et à Bruxelles. Nous réalisons également des projets en Espagne, dans la région de Valence.


